Logo
Projekte
Büro
Aktuelles
Kontakt
Stellenangebote
Projekte
Geschäftsbereich
Öffentliche Gebäude
Privates Wohnen + Gärten
Kleine Projekte
Büro
Inhaber
Team
Auszeichnungen
Veröffentlichungen
Aktuelles
Kontakt
Stellenangebote
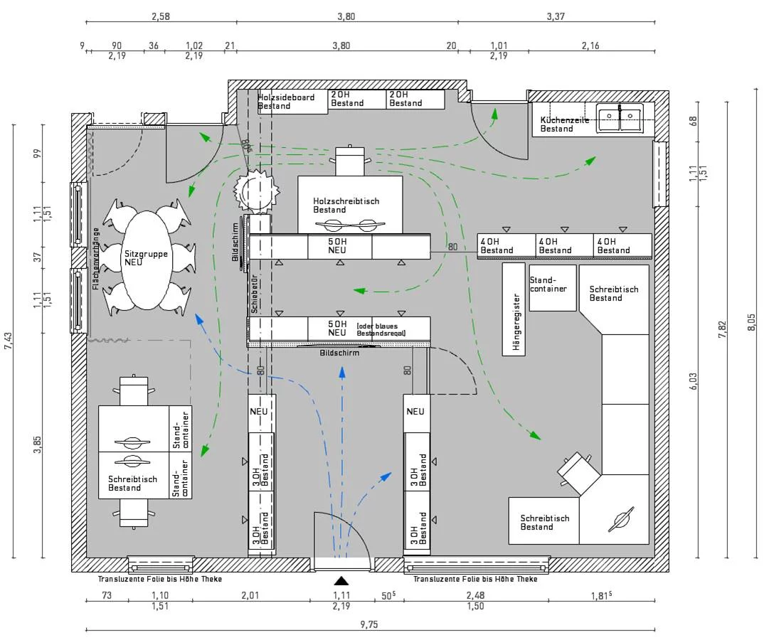
Münzenmaier Service GmbH für Haustechnik
Neue Raumstruktur und Gestaltung der Büroräume ca. 74 m²
Zurück